Gå till innehåll
Vi använder cookies för att ge dig den bästa upplevelsen av vår webbplats. Genom att fortsätta använda webbplatsen godkänner du detta. Läs mer
  • Hem
    • Sök
      • Avancerad sökning
    • Nyheter
    • Webbplatskarta
    • Cookies
    • Webbplatsinformation
    • Öppettider
    • Prenumerera via RSS
  • Ledigt just nu
    • Sök objekt
    • Lediga lägenheter
    • Lediga p-platser
    • Lediga förråd
    • Lediga lokaler
    • Byte/Omflytt
    • Våra grundkrav
    • Vårt kösystem
    • Frågor och svar
  • Mina sidor
    • Registrera dig
    • Glömt lösenord
    • Frågor och svar
  • Våra områden
    • Fjällbacka
      • Björkelidsvägen 1-5
      • Falkelidsvägen 2-4
      • Lidenvägen 13-19
      • Målgården 1
    • Grebbestad
      • Annie Buscksgata 8-22
      • Bryggerigatan 1-7
      • Esplanaden 1A-11A
      • Esplanaden 11B
      • Hagavallen 2-6
      • Härlidsberget 18-44
      • Skolvägen 5A-B
      • Tanumsvägen 20 A-B
      • Tärnegatan 7
    • Hamburgsund
      • Skolvägen 3
    • Tanumshede
      • Affärsvägen 4B
      • Bergsvägen 2A-10A
      • Bergsvägen 2B-10C
      • Ekdungevägen 2A-2H
      • Furuvägen 1-4
      • Granvägen 2-12
      • Granvägen 11-19
      • Hedeskogsvägen 4-10
      • Riksvägen 119
      • Rylandsvägen 1A-19B
      • Talldungevägen 6-10
    • Östad
      • Byvägen 3
      • Byvägen 5
    • Nyproduktion
  • Hyresgäst info
    • Aktiv mot brand
    • Andrahandsuthyrning
    • Avfallssortering
      • Litiumbatterier
    • Blanketter
    • Energispartips
    • Felanmälan och Jourärende
    • Förråd
    • Husdjur
    • Huskurage mot våld i hemmet
    • Hyran
    • Hyresgästens ansvar
      • Skötsel av balkong och uteplats
    • Individuell mätning (IMD)
    • In- och avflyttning
      • Uppsägning
    • Låsöppning
    • Nycklar
    • Parkering
      • Parkeringsregler
      • Felparkerad bil
      • Motorvärmare
    • Skadedjur
      • Vägglöss
    • Snö- och halkbekämpning
    • Temperatur
    • Tillval och renovering
    • Tv, internet och telefoni
    • Tvättstugan
    • Uthyrningspolicy
    • Vett och etikett
  • Hantverkare info
    • Inför uppdraget
    • Hos hyresgästen
    • När arbetet är klart
  • Om oss
    • Bestämmelser
    • Ekonomi
    • GDPR- Vi skyddar dina personuppgifter
    • Vårt miljöarbete
    • Organisation
    • Styrelse
    • Tillgänglighetsredogörelse
  • Kontakta oss
    • Fakturering
    • Personallista
    • Tyck till
Logga in
Registrera dig
RSS
Tanumsbostader
  • Hem
  • Ledigt just nu
  • Mina sidor
  • Våra områden
  • Hyresgäst info
  • Hantverkare info
  • Om oss
  • Kontakta oss
 
Hem / Ledigt just nu / Byvägen 3A
  • Sök objekt
  • Lediga lägenheter
  • Lediga p-platser
  • Lediga förråd
  • Lediga lokaler
  • Byte/Omflytt
  • Våra grundkrav
  • Vårt kösystem
  • Frågor och svar

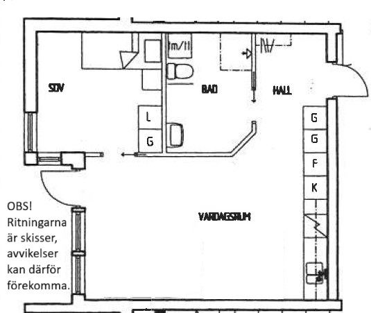
Byvägen 3A

Feltyp
Information
Den här webbplatsen behöver lagra så kallade kakor (cookies) på din dator för att fungera. De finns två typer av kakor, temporära och permanenta. De kakor som den här webbplatsen behöver är av temporär natur och rensas bort när du stänger din webbläsare. För att kunna lagra undan att du accepterar kakor måste webbplatsen dock skapa en permanent kaka för den här webbplatsen för att lagra att du accepterar användning av kakor även vid kommande besök hos oss. För att kunna använda webbplatsen behöver du acceptera att vi lagrar undan kakor på din dator.
  • Anmäl ditt intresse för detta objekt
 
/Global/DisplayMultimediaDescription.ashx?guid=80f6d1ec-6937-4aa2-ada8-6ba0a3da28fa
/Global/DisplayMultimediaDescription.ashx?guid=80f6d1ec-6937-4aa2-ada8-6ba0a3da28fa
/Global/DisplayMultimediaDescription.ashx?guid=2b28b2bc-cd8c-49e5-9fad-8aeaa0960463
/Global/DisplayMultimediaDescription.ashx?guid=88bde999-8a6f-488b-9068-3789a0cfa1bf
/Global/DisplayMultimediaDescription.ashx?guid=a0a353c1-066a-4d91-8a75-73611a51617a

Information

  • Bredband ingår ej
  • Telia kanalpaket Lagom ingår
  • Ventilation belastar hushållselen. Förbrukning ca 1 kwh/dygn
  • Värme ingår

Byvägen 3

Byvägen 3 är ett lugnt och trivsamt hyreshus med åtta lägenheter. Alla lägenheter ligger i markplan med uteplats och är utrustade med bl.a. egen tvättmaskin. Huset ligger centralt i anslutning till mataffär.

Läs mer om bostadsområdet

Östad

Samhället Östad är naturskönt beläget utmed Bullaresjön. I Östad finns bland annat en dagligvarubutik med post, bensintapp, äldreboende, låg- och mellanstadieskola samt förskoleklass och fritidshem.

Läs mer om området

Östad
 
  • Tillträde: 2026-01-01
  • Tillgänglig from: 2026-01-01
  • Anmäl senast: 2025-10-20

Fakta


  • Område:
  • Östad
  • Adress:
  • Byvägen 3A
  • Obj.nr:
  • 1064-002-3A
  • Lgh.nr:
  • 1003
  • Rum:
  • 1 rum + alkov och kök
  • Boyta:
  • 45 m²
  • Våning:
  • 0
  • Hyra:
  • 5 176 kr
  • Fastighet:
  • 1064 Östad 1:79
  • Byggnad:
  • Östad 1:79
 
  • Tanums Bostäder AB
  • Affärsvägen 18
  • 457 30 Tanumshede
  • 0525-183 50
  • info@tanumsbostader.se

  • Felanmälan:
  • Under kontorstid:
    0525-180 88
  • Akuta fel efter kontorstid:
    0525-180 88
Öppettider

Drop in tid
Måndag-Torsdag:
09:30-11:30

  • Platskarta
  • Tyck till
  • Kontakta oss
  • Webbplatsinformation
  • Cookies
  • Ordinarie sida